Geberit Duofix Speciál 111.355.00.5 komplet do bytových jader se závěsným WC RIMLESS Sapho AVVA 100315 s integrovanou baterií a bidetovou sprškou
Kód: 988789Související produkty
Detailní popis produktu
modul Geberit 111.355.00.5
tlačítko Sigma 01 bílá
závěsné WC RIMLESS Sapho AVVA 100315 bez sedátka
WC sedátko není součástí - naleznete níže v souvisejícím zboží.
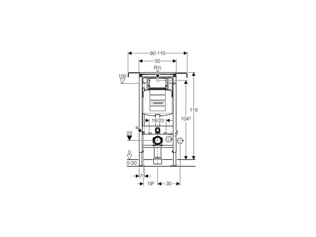
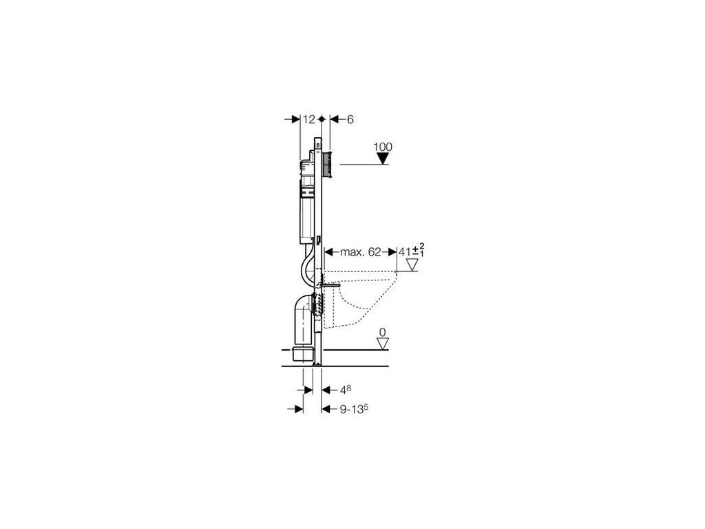
Montážní prvek Geberit Duofix Speciál 111.355.00.5 pro závěsní WC s nádržkou do stěny UP320. Určený k montáži mezi dvě stěny. Jeho uchycení do stran oceníte všude tam, kde zadní stěna není dostatečně únosná, nebo kde je uchycení do bočních stěn technicky jednodušší. Připevnit ho lze prakticky do jakéhokoliv stavebního materiálu, od panelu přes vyzdívanou (např. cihelnou, ytongovou) nebo dřevěnou stěnu až po nosník lehké sádrokartonové příčky.Účel použití:
pro skrytou vestavbu
pro tloušťku podlahy 0 - 20 cm
pro montáž závěsného WC se vzdáleností upevnění 18 cm nebo 23 cm
pro připojení Geberit AquaClean
Nevhodný pro:
pro zabetonování
Pro ovládací tlačítka:
Samba, Rumba,Twist, Tango, Bolero, Sigma a Mambo - nejsou součástí
Vlastnosti:
nastavitelné splachovací množství
splachovací nádržka pod omítku pro montáž a servisní práce bez nářadí
kryt pro hrubou montáž chrání servisní otvor proti vlhkosti a nečistotám
tyčky tlačítka zvukově izolované
splachovací nádržka pod omítku izolovaná proti orosován
ovládání zepředu
stavební výška 115 cm
Technologie splachování Rimless
Rimless (NoRim) – toalety bez tradičního oplachového kruhu. Hladký povrch bez dutin a záhybů. Oplachová voda vytéká rozdělovačem vody pouze ze zadní části WC mísy a díky speciálnímu tvaru keramiky dokonale opláchne vnitřní prostor. Výhodou je snadná údržba a čištění WC mísy.



Water saving - úsporné splachování
Tvar mísy umožňuje efektivní a účinné spláchnutí s menším objemem vody a tím šetří životní prostředí a náklady za vodu.
Úsporné splachování je možné použít u splachovacího mechanismu (v nádržce WC kombi nebo podomítkové nádržce u závěsného WC), jehož vypouštěcí ventil umožňuje nastavení objemu vody od 4 litrů. V případě duálního splachování u malého tlačítka objem od 3 litrů a většího tlačítka objem od 4,5 litru vody.
CleanWash bidetová sprška integrovaná do WC mísy
Technologie CleanWash (integrovaná hygiena) zajišťuje pohodlné používání díky bidetové trysce integrované do WC mísy. Integrovaný systém bidetových trysek zvyšuje komfort hygieny při používání WC. Ovládací baterie (umožňuje volbu teploty vody) nebo ventil (pouze studená voda) se podle typu bidetové spršky umisťuje na stěnu nebo je k dispozici instalován přímo na WC míse.
Vlastnosti
| Značka | SAPHO | |
|---|---|---|
| Rozměr | 35,5x53 cm | |
| Šířka | 355 mm | |
| Hloubka | 530 mm | |
| Barva | Bílá |
|
| Materiál | Keramika | |
| Technologie splachování | Rimless | |
| Objem splachovací vody | Splachování 3 l, Splachování 6 l | |
| Tvar | Klasik | |
| Výbava | CleanWash bidetová sprška, Skryté uchycení | |
| Balení neobsahuje | WC sedátko | |
| Hmotnost / ks | 23.6 kg | |
| Balení | 1 ks | |
| Záruka | 2 roky |
Doplňkové parametry
| Kategorie: | Závěsné WC komplety |
|---|---|
| Záruka: | 2 roky |
| Hmotnost: | 35 kg |
| Provedení: | Do bytových jader |
| Hmotnost: | 35 kg |
| Požadované vlastnosti: | Rimless/RimOFF |
Buďte první, kdo napíše příspěvek k této položce.
| Výrobní společnost : | Geberit spol. s r. o. |
|---|---|
| Adresa : | Sokolovská 2408/222 190 00 Praha 9 |
| E-mail : | info.cz@geberit.com |
