Alcaplast AM101/1120 Sádromodul předstěnový instalační systém do sádrokartonu

Kód: 107762
Akce slevaX SALECODE:BER3:3:%
Průměrné hodnocení produktu je 5,0 z 5 hvězdiček. 1 hodnocení Podrobnosti hodnocení
8 533 Kč –59 %
p9165 8
8 533 Kč –59 % 3 440 Kč / ks 2 843 Kč bez DPH
Skladem na prodejně

Detailní informace

Detailní popis produktu

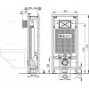
WC modul pro suchou instalaci (do sádrokartonu)

Použití

  • Pro montáž před nosnou stěnu nebo do sádrokartonové konstrukce
  • Pro montáž závěsného WC s připojovací roztečí 180 mm nebo 230 mm
  • Pro tlouštku podlah 0–200 mm
  • Pro závěsné WC

Vlastnosti

  • Duální splachování nezávisle nastavitelné s hygienickou rezervou
  • Kompatibilní se všemi ovládacími tlačítky Alca
  • Konstrukce polystyrenové izolace zabraňuje rosení na povrchu nádržky a tlumí prostup vibrací z nádržky do stavební konstrukce
  • Konstrukce rámu dovoluje kotvení k samostatné dostatečně nosné sádrokartonové příčce nebo před nosnou stěnu
  • Kryt servisního otvoru zjednodušuje montáž a brání pronikání vlhkosti a nečistot
  • Materiál nosné konstrukce: kov ošetřený práškovou barvou
  • Montážní hloubka nastavitelná v rozmezí 20–95 mm
  • Možnost vestavby oddáleného nebo senzorového splachování
  • Nádržka je vyrobena z jednoho kusu, čímž je zaručena 100% nepropustnost
  • Nastavitelné kotvící výsuvné nohy s brzdou v rozmezí 0–200 mm

Obsah balení

  • Fixační set pro uchycení WC mísy: závitová tyč M12 – 2 ks, podložky – 4 ks, krytka – 2 ks, matice – 2 ks, chránička závitu – 2 ks
  • Fixační set: vrut O8×60 – 4 ks, hmoždinka O12 – 4 ks
  • Koleno odpadu HT 90/90 polyethylen, PE-HD
  • Kryt servisního otvoru dvoudílný, jednoduše zkrátitelný
  • Nádrž s napouštěcí a vypouštěcí armaturou
  • Redukce odpadu HT 90/110 polyethylen, PE+HD
  • Sada instalačních krytek pro ochranu připojovacích otvorů při montáži systému
  • Sada pro vhazování WC tablet

Technické informace

  • Zátěžová zkouška: 0,3 - 0,5 MPa
  • Funkční rozsah tlaku vody: 0,05 - 1,6 MPa
  • Hygienická rezerva: 3 l
  • Malé spláchnutí: 2,5 - 3,5 l
  • Objem vody v nádržce: 9 l
  • Připojení vody zezadu nebo shora montážními otvory: G1/2 ""
  • Standardní nastavení malého spláchnutí: 3 l
  • Standardní nastavení velkého spláchnutí: 6 l
  • Velké spláchnutí: 6 - 9 l

Doplňkové parametry

Kategorie: Moduly závěsné WC do sádrokartonu
Záruka: 2 roky
Hmotnost: 13.9 kg
EAN: 8595580549398
Provedení: Do sádrokartonu
Hmotnost: 13,9 kg

Hodnocení produktu

Buďte první, kdo napíše příspěvek k této položce.

Průměrné hodnocení produktu je 5,0 z 5 hvězdiček. 1 hodnocení
5
1x
4
0x
3
0x
2
0x
1
0x

Zanechte hodnocení

Nevyplňujte toto pole:

Jak byste ohodnotili tento produkt? Vyberte od 1 do 5 hvězdiček, kde 1 je nejhorší a 5 nejlepší hodnocení.

Výpis hodnocení

Výrobní společnost : Alcadrain s.r.o.
Adresa : Komunardů 1626/35 Praha 7 - Holešovice 170 00
E-mail : alcadrain@alcadrain.cz