Alcaplast AM101/1120 Sádromodul komplet do sádrokartonu se závěsným WC RIMLESS Sapho AVVA 100315 s integrovanou baterií a bidetovou sprškou
Kód: 988787Související produkty
Detailní popis produktu
KOMPLET OBSAHUJE:
modul AM101/1120 (A101/1200)
bílé tlačítko M70
závěsné WC RIMLESS Sapho AVVA 100315 bez sedátka
tlumící vložka
WC sedátko není součástí - naleznete níže v souvisejícím zboží.
Tento předstěnový instalační systém AM101/1120 Sádromodul od firmy Alcaplast nahrazuje modelovou řadu A101/1200. Instalace těchto systému je nyní rychlejší a k jejich montáži vám nyní postačí pouze jeden klíč. NOVINKOU je sada pro vhazování tablet, která je součástí dodávky.
Použití:
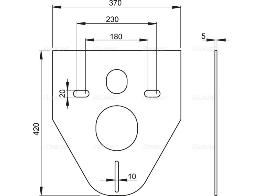
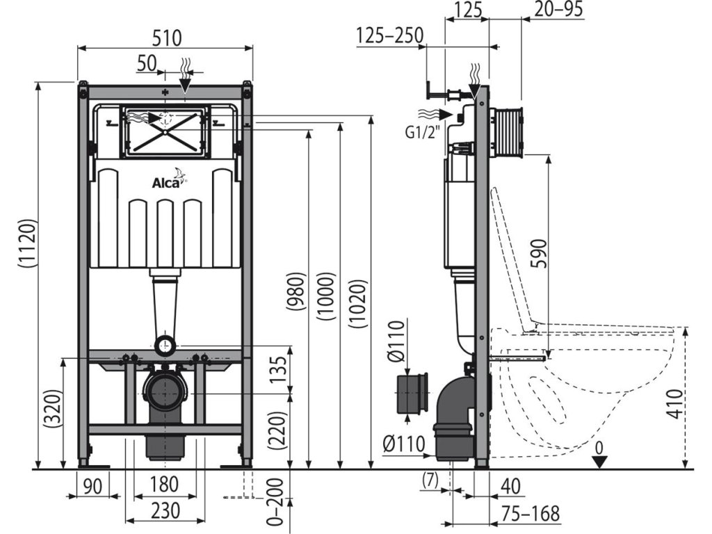
pro montáž závěsného WC s připojovací roztečí 180 mm nebo 230 mm
pro montáž před nosnou stěnu nebo do sádrokartonové konstrukce
pro tloušťku podlah 0-200 mm
Technické parametry:
Doporučený rozsah tlaku vody: 0,3 – 0,5 MPa
Funkční rozsah tlaku vody: 0,05 – 0,8 MPa
Hygienická rezerva: 3l
Malé spláchnutí: 2,5 – 3,5l
Velké spláchnutí: 6 – 9l
Objem vody v nádržce: 9l
Stavební hloubka: 125 mm
Stavební výška: 1120 mm
Připojení vody zezadu nebo shora montážními otvory: G1/2 "
Standardní nastavení malého spláchnutí: 3l
Standardní nastavení velkého spláchnutí: 6l
Zátěžová zkouška: 400kg
Vlastnosti:
duální splachování, nezávisle nastavitelné s hygienickou rezervou
kompatibilní se všemi ovládacími tlačítky Alcaplast
materiál nosné konstrukce: pozinkovaný kov
montážní hloubka nastavitelná v rozmezí 20-95 mm
nastavitelné kotvící výsuvné nohy s brzdou
možnost vestavby oddáleného nebo senzorového splachování
nádržka je vyrobena z jednoho kusu
mechanismus držáku odpadu v osmi polohách ve vzdálenosti 0-93 mm
přívod vody zezadu/shora uprostřed
Technologie splachování Rimless
Rimless (NoRim) – toalety bez tradičního oplachového kruhu. Hladký povrch bez dutin a záhybů. Oplachová voda vytéká rozdělovačem vody pouze ze zadní části WC mísy a díky speciálnímu tvaru keramiky dokonale opláchne vnitřní prostor. Výhodou je snadná údržba a čištění WC mísy.



Water saving - úsporné splachování
Tvar mísy umožňuje efektivní a účinné spláchnutí s menším objemem vody a tím šetří životní prostředí a náklady za vodu.
Úsporné splachování je možné použít u splachovacího mechanismu (v nádržce WC kombi nebo podomítkové nádržce u závěsného WC), jehož vypouštěcí ventil umožňuje nastavení objemu vody od 4 litrů. V případě duálního splachování u malého tlačítka objem od 3 litrů a většího tlačítka objem od 4,5 litru vody.
CleanWash bidetová sprška integrovaná do WC mísy
Technologie CleanWash (integrovaná hygiena) zajišťuje pohodlné používání díky bidetové trysce integrované do WC mísy. Integrovaný systém bidetových trysek zvyšuje komfort hygieny při používání WC. Ovládací baterie (umožňuje volbu teploty vody) nebo ventil (pouze studená voda) se podle typu bidetové spršky umisťuje na stěnu nebo je k dispozici instalován přímo na WC míse.
Vlastnosti
| Značka | SAPHO | |
|---|---|---|
| Rozměr | 35,5x53 cm | |
| Šířka | 355 mm | |
| Hloubka | 530 mm | |
| Barva | Bílá |
|
| Materiál | Keramika | |
| Technologie splachování | Rimless | |
| Objem splachovací vody | Splachování 3 l, Splachování 6 l | |
| Tvar | Klasik | |
| Výbava | CleanWash bidetová sprška, Skryté uchycení | |
| Balení neobsahuje | WC sedátko | |
| Hmotnost / ks | 23.6 kg | |
| Balení | 1 ks | |
| Záruka | 2 roky |
Doplňkové parametry
| Kategorie: | Závěsné WC komplety |
|---|---|
| Záruka: | 2 roky |
| Hmotnost: | 35 kg |
| Provedení: | Do sádrokartonu |
| Hmotnost: | 35 kg |
| Požadované vlastnosti: | Rimless/RimOFF |
Hodnocení produktu
Buďte první, kdo napíše příspěvek k této položce.
| Výrobní společnost : | Alcadrain s.r.o. |
|---|---|
| Adresa : | Komunardů 1626/35 Praha 7 - Holešovice 170 00 |
| E-mail : | alcadrain@alcadrain.cz |
